Área de Profissionais

Máquina de Louça Integração Total 60cm

Ref: DBJ422DQX

INFORMAÇÃO DO PRODUTO

Integração total 60cm
Motor por indução
14 talheres
2 cestos
Consumo por ciclo: 9.8 L, 0.65 kWh
Partida diferida 24 horas
Cesto superior regulável em altura
8 programas
5 temperaturas de lavagem
Secagem por convecção natural
Segurança anti transbordamento,  anti fugas, Aquablock
Spotlight
Sliding door
Abertura automática de fim de ciclo
Nível de ruído: 42 dB(A) - Classe B
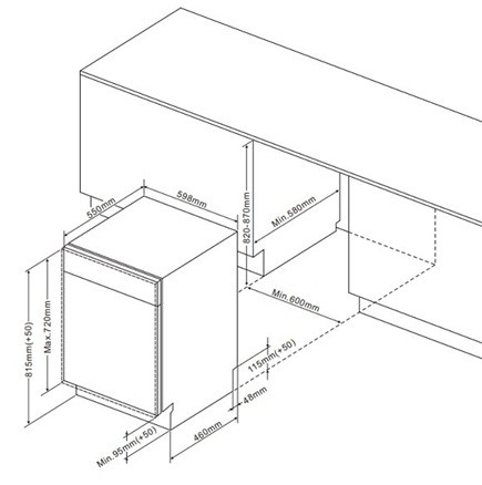
Medidas de encastre (mm): A 820-870 x L 600 x P 580